143 Kirkaldy Lane Lakefront Home

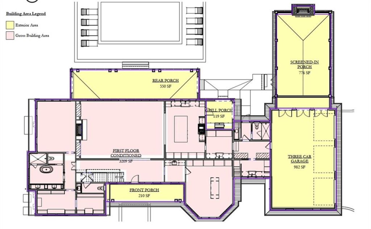
Stunning new construction home located in Frederica Township, estimated completion early Spring 2026. Sitting on over 2 acres this lake front property was thoughtfully designed by Joshua Youngner to capture the gorgeous views and provide exceptional indoor/outdoor living to enjoy all the natural beauty of Frederica. The homes main level features a large family room and open kitchen, private study, as well as the primary bedroom. Upstairs are 4 bedrooms all with en suite baths and an additional sitting room. To complete the outdoor space is a pool, a large covered patio with fireplace, open porch, and a separate grilling patio with direct access to the main kitchen. Framing has started, estimated completion March - April 2026. Listing courtesy of Maritime Realty Group LLC.

Listing Details

Price: $3,495,000
Lot: Lake
Footage: 5,594 heated sq. ft.
Bedrooms: 5
Bath: 5 Full 2 Half
Furnished: No
Acreage: 2.18
Architect: Josh Younger

Want to know more about Frederica Living?

Request more information and join our mailing list.